Address
1/21 Penny Pl, Arndell Park NSW 2148, Australia
Work Hours
Monday to Friday: 10AM - 7PM
Weekend: 10AM - 5PM
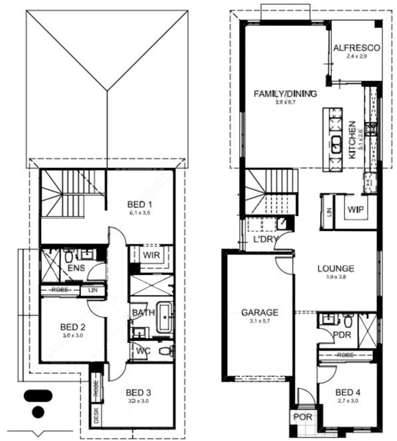
The Breeze Double-Storey home is designed to bring light, space, and flow into everyday living. With airy open-plan layouts, generous bedrooms, and multiple entertaining zones, Breeze is ideal for families seeking comfort and versatility. Featuring contemporary finishes, clever storage, and seamless indoor-outdoor transitions, this home perfectly captures a relaxed yet refined lifestyle.
4 Bed
3.5 Bath
2 Car Space
| Area | Size (sqm) |
|---|---|
| Ground Floor | * |
| Garage | * |
| Porch | * |
| Alfresco | * |
| Total Area | * |
